[甲府市和戸]築23年でもまるで新築中古物件販売会|完全予約制
イベント概要
- 開催日
- 2月21日㈯22日㈰23日㈷ ✓当日の見学もOK]当日ご見学ご希望の方は電話ください!
- 開催時間
- ①10:00 ②12:00 ③14:00 ④16:00 各時間1組様限定【予約制】
- 開催場所
- ご予約時に場所をご案内いたします
- 入場無料
- 無料相談
- 見積り相談
イベント内容
/
4LDKの広々間取りに今すぐ住める!理想の住まい
\
人気エリア”甲府市和戸”に再販物件が登場!
コスパ良く希望のエリアに住めるチャンス♬子供さんの学区を変更したくない方はすぐにお引渡しも可能ですのでご検討ください!【限定1棟】(引き渡しは要相談)
■住所:山梨県甲府市和戸町1048-9
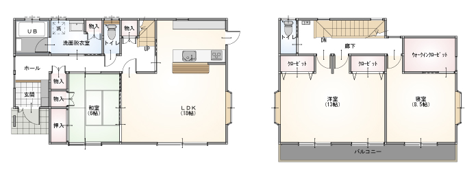
■広さ:土地面積:183.21㎡(55.42坪) 建物面積:120.89㎡(36.50坪)
■間取り:3SLDK
■価格:2,180万円(月々返済55,380円)
※頭金・ボーナスなしJA山梨みらい変動金利1.025%(令和8年1月現在)借入期間40年
こんな方におすすめ
- 子供学区が決まっていて和戸の土地がなかなか決まらない方
- 好立地でコスパ良く住みたい方
- 今すぐにでも引っ越しを考えている方
など、住みたいまちにコスパ良く済むことができる中古物件は今大人気!
「古いかなあ?」と不安な方も安心!既にリフォーム済ですのでまるで新築のようにきれいな仕上がりになっています。
新築と中古を迷っている方ならぜひ見学会にご参加くださいね!(^^)!
見どころポイント
/
住みやすい人気のエリア甲府市和戸
\
・築23年とは思えないキレイさ!
・広々4LDKで日当たりよし!
・閑静な住宅街・分譲地内なので住みやすい!
・駐車場3台以上!
DATA~どんな物件?~
こちらの物件の購入もOKです。
詳しい物件情報は▼チェックしてください▼
所在地:山梨県甲府市和戸町1048-9
価格:2,180万円(税込)
土地面積:183.21㎡(55.42坪) 建物面積:120.89㎡(36.50坪)
交通:JR中央本線酒折徒歩26分
土地権利:所有権
建ぺい率:60% 容積率:200% 現状:空き家
建物構造:木造2階建 築年月日:2003年7月新築
引渡し日:相談 水道:公営水道 排水:下水道
電気:東京電力 ガス:プロパン 接道:南側6.0m公道接面15.0m 北6.0m公道接面16.0m
学区:甲運小学校 取引状態:売主
開催日時・開催場所
随時開催中!ぜひご予約の上お越しくださいね!(^^)!
10:00~17:00 (最終受付 16:00)
※お一組様30分~1時間を予定しております。
※予約の受付は【2日前の17時まで】とさせていただきます。
※直前のご予約はお電話でご相談ください。
※詳細はご予約の際にお伝えいたします。
ご予約の受付は、お電話、HPのお問合せフォーム、メールにて承ります。
※このページの下部に予約フォームがございます。
