施工事例

works

[南アルプス市]オシャレに!高さのある空間がうれしい♬中古リノベ

After

Before

お客様名
R様
エリア
南アルプス市
施工費用
販売価格:2,048万円
施工期間
約3か月

お客様のお困りごと

子供達も大きくなってきてそろそろアパートでは手狭と思っていました。
新築も考えていましたが、お友達もご実家をリノベーションした!と話を聞き”リノベ”に興味を持ちました。
他社さんで新築の住宅ローンを断られたこともありよりコスパ良い中古物件と聞き「お家が持てるかも」と相談に行きました。

やっぱりお金・住宅ローンのことが心配でした。

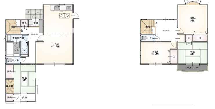
平面図

間取り/パース

  • After

高さのある空間でより広く!見せるワザ

  • 玄関には親子ドアで玄関自体も広くなっているので入った1歩目から広々とした印象になります。
    大きな下駄箱があるので靴やコートなどなど収納はお任せ!

  • 天井まであるハイドア風でお部屋を広く見せることができます
    実はこのドア通常のドアの上部分に同じ素材で作った板をはめてハイドア風に大変身♬
    高く見せられるため、お部屋を広々と感じることができます

思い出はそのままに大変身

  • キッチン上部の吊り戸や勝手口はそのままにキッチンは大変身!
    使用できる便利な部分はそのままに使い勝手を良くする工夫が盛りだくさんです

voice

お客様の声

そろそろマイホームを建てたいと思っていましたが自分たちの収入ではなかなか住宅ローンも難しく他社さんにも断られていました。
そんななかローコスト住宅をやっている!とおもいデイクさんへ
新築では難しかったのですが中古住宅の提案をいただき実際に物件を見せてもらいました。
立地もよく思ったよりも広くきれいな状態で我が家でもローンがとおったのでお願いすることにしました!
比較的すぐ引っ越しもできよかったと思っています。ありがとうございました

担当者からのコメント

この度はご購入いただき誠にありがとうございます。こちらの物件は大人気で販売したところ非常に多くのお問合せもいただきました。
今後も何かご不明な点がございましたらお気軽にお問い合わせください

ピックアップ
コンテンツ

PICK UP

見学/相談無料

山梨で住宅リノベーションなら
ミスターデイク

お家のことならなんでもデイク

050-7300-0827

定休日 水曜日 営業時間 9:00~18:00

山梨県内の施工対応エリア

甲府市、昭和町、甲斐市、南アルプス市、中央市、北社市、韮崎市、笛吹市、富士川町、市川三郷町、身延町、塩山、山梨市とその周辺地域に限らせていただいております。エリア内でも一部ご対応ができない場合もございます。詳しくはお気軽にお問い合わせください。